Auftraggeber
Stahlton AG
Standort
Frick
Fertigstellung
2025
Ursprungsjahr
2025

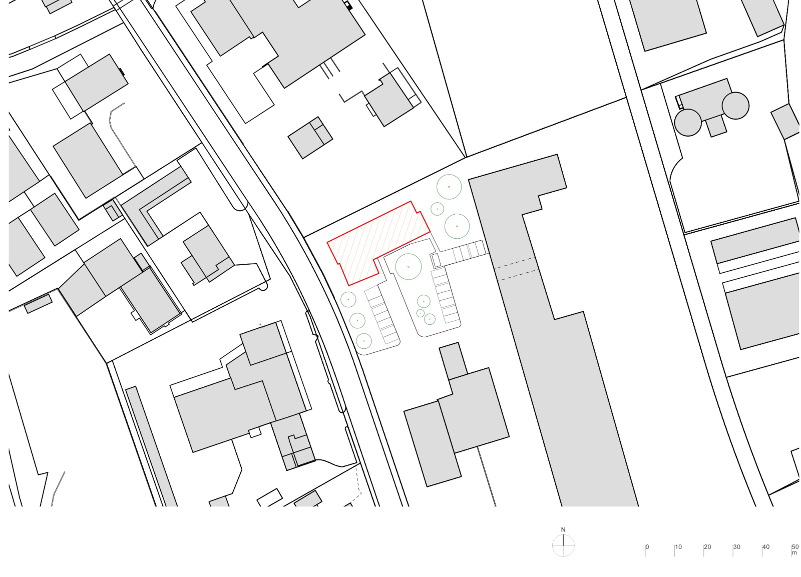
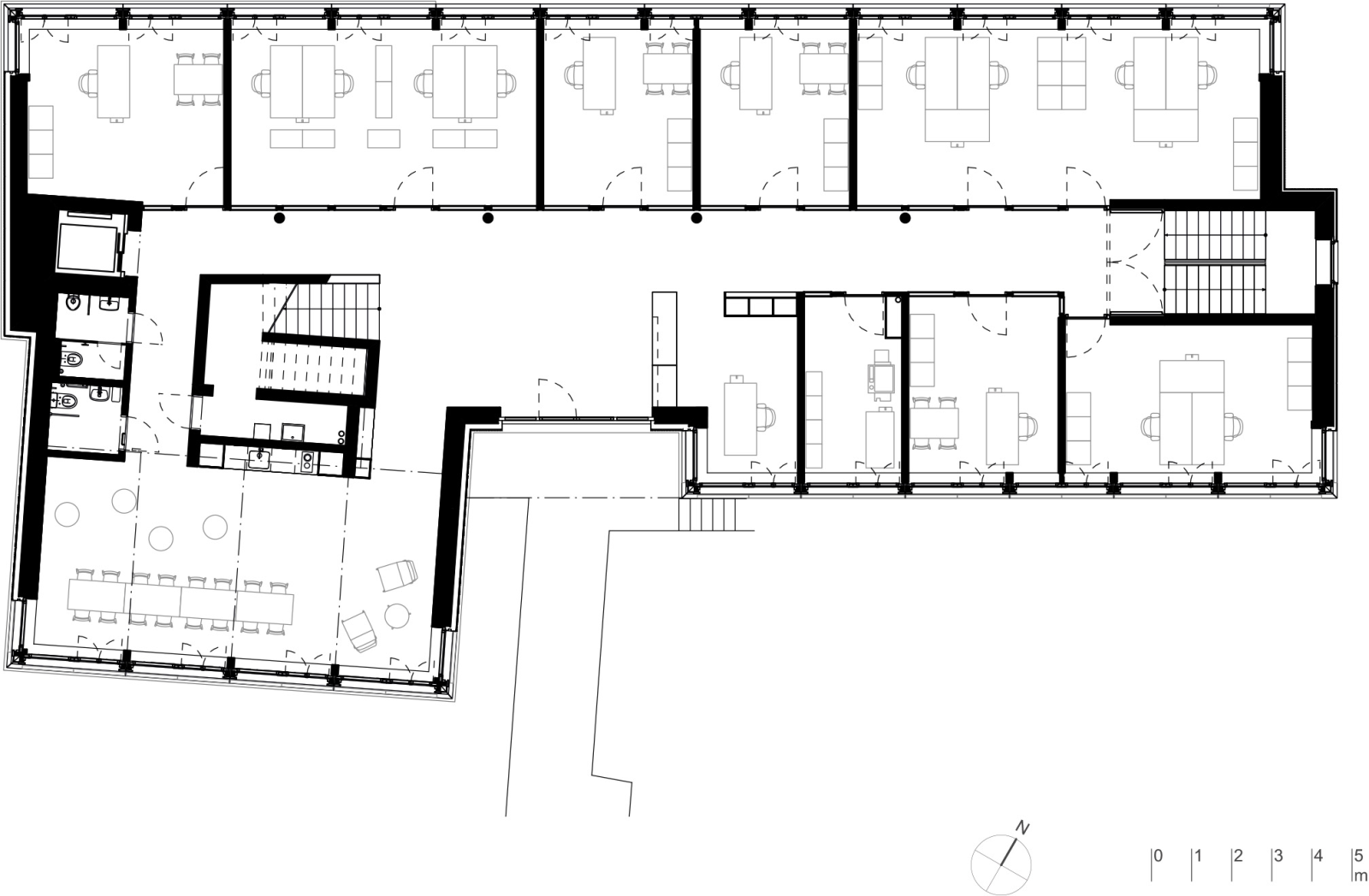
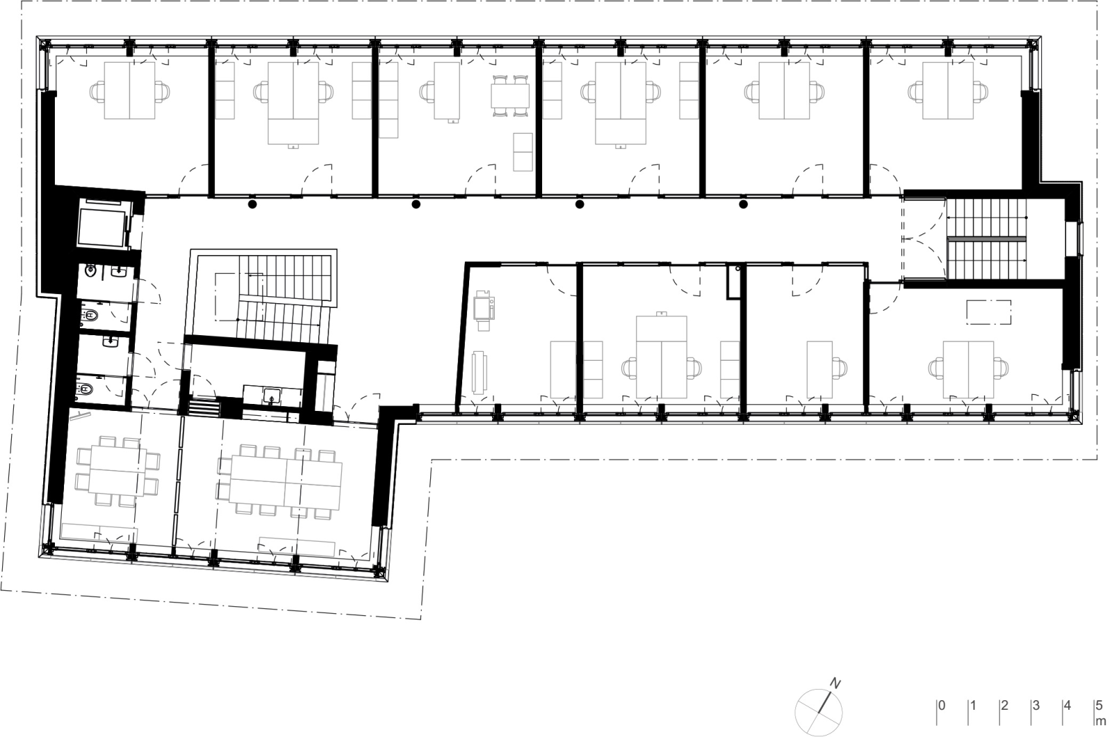
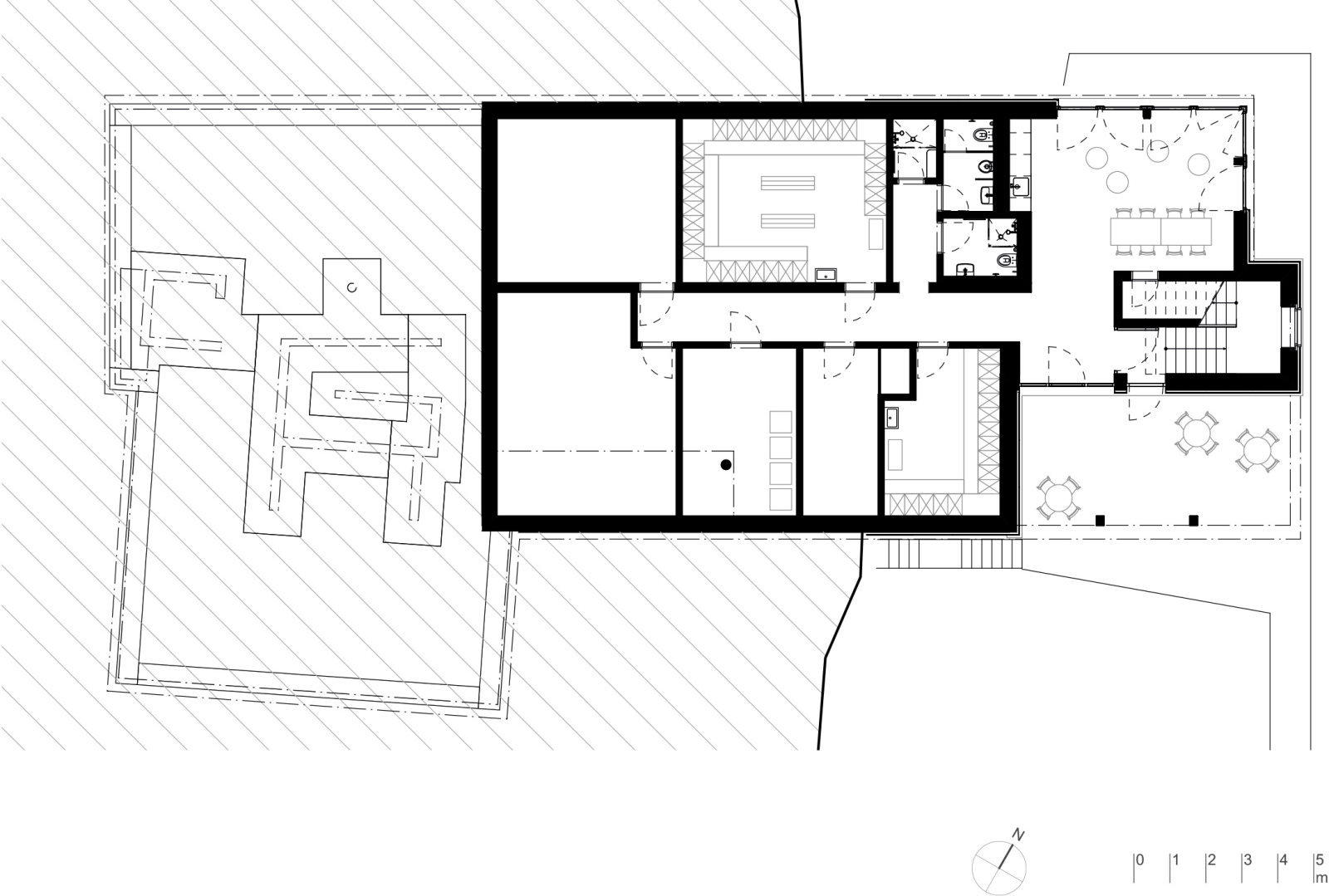
Verwaltungsgebäude vom Werk 2 der Stahlton AG in Frick

Mit dem Bau eines Bürogebäudes auf dem Areal des Werks 2 in Frick knüpft die Stahlton AG an die kontinuierliche Geschichte der Werksentwicklung in Frick an. Das Projektareal liegt am nördlichen Siedlungsrand von Frick zwischen der Hauptstrasse und der unteren Grubenstrasse. Der Neubau stellt sich quer zur Strasse und platziert die Arbeitsplätze an den lärmabgewandten Längsseiten. Strassenseitig findet das Volumen einen kopfartigen Abschluss, in welchem sich beim Haupteingang die Cafeteria im Erdgeschoss und die Besprechungsräume im Obergeschoss befinden. Diese öffentlicheren Nutzungen sollen als Begegnungs- und Ausstellungszonen auch für die Kommunikation genutzt werden. Zudem konnten in diesem Flügel Prototypen einer neuen Projektentwicklung eingebaut werden: die im Eingen Werk produzierten Stahltondeckenelemnete nehmen Akustik, Haustechnik und die thermische Bauteilaktivierung (TABS) in sich auf.




Fotos © Renderings Steiger Architekten Baden